Praktisk informasjon
Stand
Hver ungdomsbedrift vil ha en stand inne i Hamarhallen, som er i direkte tilknytning til Scandic Hamar. Ungdomsbedriften får tildelt et gulvareal på 1,20 x 2 meter. Dette blir avgrenset med at det blir lagt ut en grå matte.
Alt dere trenger til egen utstilling må dere ha med/skaffe tilveie på egenhånd. Det er ikke tillatt å bygge egne vegger eller større installasjoner.
Husk fokus på bærekraft! Ikke lag en stand som genererer mye avfall.
Det vil være tilgang til strøm i hallen. Ta med egen skjøteledning og kontakter.
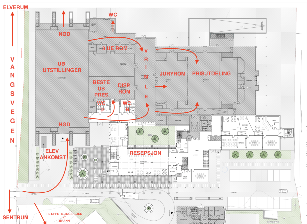
Arealplan Scandic

Eksempler på stand
I bildekarusellen under kan dere se eksempler på stands fra 2019.
Mat
Vi serverer lunsj til alle deltakerne på Fylkesmesterskapet. Dette blir en wrap levert av Scandic. Husk å oppgi eventuelle allergier i påmeldingsskjemaet.
Mat utover dette må hver enkelt ta med selv. Husk at det ikke er lov å nyte medbrakt mat i hotellets lokaler (må spises inne i messehallen).
Spørsmål?
På denne siden kommer det mer informasjon etter hvert som arrangementet nærmer seg.
Har du spørsmål, kan du alltid ta kontakt med vår mesterskapsgeneral:







